Jump to content

Recommended Posts

Posted

Imagem colocada

building study

Artful arrangements at Sauerbruch Hutton’s Brandhorst Museum

22 May 2009

Though Sauerbruch Hutton’s Brandhorst Museum — the latest addition to Munich’s emerging Museum Quarter — suffers from poor masterplanning, as a modern art gallery it is very successful

Imagem colocada
- By Ellis Woodman

Museum quarter. Good God, don’t the mere words exhaust you to your bones? While the prospect of half a dozen heaving treasure houses piled together cheek by jowl may prove a lure to the package tourist keen to acquaint himself with 2,000 years of civilisation before lunchtime, the rest of us can surely only wonder what possible curatorial, social, economic or urban dividend such a compressed arrangement affords.
In their mania for the encyclopaedic and self-conscious engagement with issues of national identity, the originals of the model — such epic conceptions as London’s Albertopolis and Berlin’s Museum Island — can at least be understood as quintessential products of the 19th century. The logic behind such present day iterations as Abu Dhabi’s Saadiyat Island and West Kowloon Cultural District in Hong Kong is altogether more obscure.

Imagem colocada

Credit: Annette Kisling

The museum is clad in perforated metal with an outer layer of glazed ceramic rods.

Over the past two decades, the burghers of Munich have, however, seen fit to put together yet another such ensemble. It is steadily taking shape on land immediately outside the medieval city centre, co-opting as its focus one of the world’s truly great museums, Leo von Klenze’s 1836 Alte Pinakothek.
This building takes the form of a 200m-long bar, which stands as a solitaire centrally located within an expanse of lawn. The new development lies alongside, occupying a block of similarly generous dimensions that was formerly the site of a 19th century barracks. Heavily damaged during the war, this structure was finally demolished in the 1970s, allowing a substantial university building to be erected along the block’s northern edge.
In 1992, architect Stefan Braunfels won a competition that addressed both the block’s long-term development as the site of a number of new museums and the design of its first and largest component — the Pinakothek der Moderne. His masterplan proposed an arrangement that was the direct inverse of the neighbouring block: in place of von Klenze’s narrow built volume, framed to either side by open ground, Braunfels envisaged a central allée, or walkway, of green space framed between bands of building. Since its completion in 2002, his Pinakothek der Moderne has formed the southerly of those two bands. A bombastic exercise in intersecting plan geometries, it makes for a pretty rotten gallery and also points up a fundamental indecision in the masterplan. Straddling between the allée and the perimeter of the site, each of the five buildings anticipated by the masterplan effectively has two principal frontages.
The Pinakothek der Moderne is of a scale that it can support an entrance on both, linked by a central atrium which slices through the body of the building on a (highly disruptive) diagonal. However, the others are very much smaller. Each is conceived as a linear block that straddles the 100m between the allée and Theresienstrasse, the road that closes the site to the north. Their narrow dimension varies, but none is of a width that could happily sustain a through-route. The question therefore arises: which way should they face?

Imagem colocada

Credit: Noshe

The monumental staircase with the light-diffusing stretched fabric louvres to the right.

The first set of architects presented with this conundrum were the entrants to the 2002 competition for the Brandhorst Museum. This building — a home for a substantial collection of modern art gifted to the city by Udo Brandhorst and his late wife, Anette — was designated a plot at the north-east corner of the site. This part of the museum quarter is the closest to the city centre. The building’s loyalties were therefore particularly conflicted — it could address the city or it could address the allée but it surely couldn’t do both. One of the shortlistees, Zaha Hadid, thought otherwise, attempting a diagonal through-route in the Braunfels manner. She lost. Of the others, all but one opted to address the allée. The exception was Sauerbruch Hutton, and its choice ultimately proved decisive in securing the commission. Its building, which opened last week, stacks the galleries on three levels, one underground and two above. The width of the above ground volume is a mere 18m for much of its length but at the Theresienstrasse end it widens and also grows in height, marking the building’s entrance with a pronounced “head”. As the range of responses to the competition suggests, none of the possible orientations was ideal. However, while we evidently might not be in the position of reviewing a new Sauerbruch Hutton building had the practice faced its scheme in the opposite direction, I am not altogether persuaded that it made the right call. The city’s gain is undoubtedly the masterplan’s loss, with the effect that where one might have imagined a café spilling out in the central allée, we find instead a service entrance.
One is also left wondering how convincingly the practice has capitalised on its choice. The principal elevation looks across Theresienstrasse to a really exceptional 1950s apartment building by Sep Ruf. This eight-storey block stands a significant distance back from the other buildings that line the street — a decision Ruf took in order to prevent the barracks from overshadowing the beautifully detailed steel balconies that extend along his principal facade. Sauerbruch Hutton’s decision to build up the museum’s volume against Theresienstrasse offers a successful response to the apartment block’s height. What feels like something of a missed opportunity is the judgment that it has made about where to set the building line. Give or take a metre, this accords with that of the barracks and thus with that of every other building on the street. To question the wisdom of such an evidently good-mannered solution might be thought perverse. And yet, what if the Brandhorst had mirrored not only the height of Ruf’s building but also its setback? Then it would find itself on an intimately scaled square and any doubts about the building’s orientation would in large part be allayed.

Imagem colocada

Credit: Annette Kisling

The upper floor is given over to works by Cy Twombly.

Being a Sauerbruch Hutton building, the Brandhorst is — needless to say — extravagantly coloured. The cladding takes the form of two distinct layers. The rear one is a rainscreen of perforated metal, backed with acoustic insulation to minimise the reflection of traffic noise to the immediate neighbourhood. The metal folds back and forth up the building’s height, the resultant bands being emphasised by alternating shades of red and blue. This can be glimpsed through the gaps in the outer layer, which comprises a continuous field of 36,000 glazed ceramic rods. The colouring of the rods gives the building the appearance of three intersecting volumes, which broadly correspond to the ground-floor galleries, those on the upper level and the “head”. Each has been assigned its own family of colours. The architect describes the treatment as akin to an abstract painting and while one can’t help suspecting that should the practice ever land the commission for the headquarters of the Swedish Institute of Funeral Directors it would still choose to jazz up proceedings with magenta and mango stripes there is, nonetheless, a very real resonance between the Brandhorst’s facades and the concerns of the (predominantly pop) art inside.
This achievement must, of course, be weighed against the building’s impact on what is a highly established urban setting. Much of Sauerbruch Hutton’s oeuvre has been realised on sites that lie either on the urban periphery or within territories of vividly metropolitan character and the practice’s explorations of colour have been led by the particular challenges of those conditions. The scale of the fabric within which the Brandhorst sits is still much as it was in the 19th century and despite the effects of Second World War bombing, a great many historic buildings remain. The fineness of the Brandhorst’s facades represents an attempt to respond to that shift of scale. Viewed up close, their polychromy certainly appears pretty strident but from a distance it seems to dissolve into a white noise, or more precisely a pastel one which takes its place comfortably enough among the rendered facades of the surrounding streets. That said, one might still question whether the building’s urban obligations are adequately met by such a consistently applied facade treatment. The fracturing of the building into three differently coloured volumes is really the only visually significant modulation that the cladding accommodates, and while this gesture clearly introduces a sense of variety, what it determinedly does not do is instill any kind of hierarchical division. Indeed, very little distinction at all is made between the building’s front, back and sides. Whether this ambiguity serves to ameliorate or compound the confusions of the masterplan is a moot point but it does make for a building that feels pretty disengaged from the urban concerns of its neighbours.

Imagem colocada

Credit: Noshe

The staircase enjoys a very direct relationship with the exhibition areas.

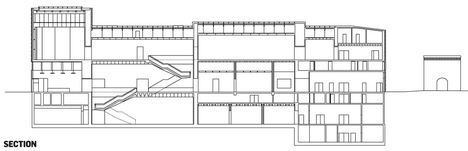
OK, enough gripes. The Brandhorst’s interior really is very successful indeed. In the interests of maximising hanging space, visitors are almost entirely denied views out of the building but their journey is far from a monotonous one, modulated through variations in the layout of the galleries, their size and the the ways in which they receive daylight.
Configured in a meandering enfilade that frustrates long views through multiple rooms, the ground-floor galleries are the most intimately scaled and are further distinguished by being sidelit. This is achieved through the provision of a continuous clerestory along the external wall of each gallery, the light from which is reflected off a coved ceiling before being diffused and scattered by a bank of stretched fabric louvres. While this feature has a more demonstrative character than one might ordinarily expect to find in an art space the bullish Polke, Koons and Warhol pieces that live here prove more than capable of holding their own.
Vertical circulation is by way of a monumental stair that ranges freely in plan. It is disengaged from the adjacent walls in order to open up a slot within which large canvases — at 12m in length, Warhol’s piquantly named Piss Painting is the largest — can be hoisted up and down. The stair enjoys a very direct relationship to the exhibition areas. In fact, on the lower level it touches down in the middle of the largest gallery — an epic 460sq m top-lit room of quasi-industrial character. Immediately alongside lie the only rooms without daylight — spaces that have been designed to display early 20th century works on paper. The hard juxtaposition of these different viewing conditions feels particularly rich in curatorial potential.

Imagem colocada

Credit: Annette Kisling

A rare view out of the building

The rooms on the upper level also vary dramatically in scale but are lit consistently by way of an Okalux light. At present, the whole floor is given over to works by Cy Twombly, some from the Brandhorst collection and a number loaned by the artist but made in response to the spaces of the new building. Among those from the museum’s own holdings is a series of 12 gigantic canvasses, which depict the 1571 Battle of Lepanto. The Lepanto Cycle is one of the principal monuments of Twombly’s late career and — uniquely among the works in the collection — has been put on permanent display in a gallery that has been tailored to its specific needs. This room occupies the upper level of the “head” but its plan has been developed independently of the external form. The given geometry of the room has been dummied out by a series of faceting planes, with the effect that as visitors enter through a centrally located door they discover the entire series laid out panoramically in front of them. It really is a tremendous coup de théâtre.
The Brandhorst collection comprises about 700 works, of which less than a quarter can be shown at any one time — a fact that lends weight to Sauerbruch Hutton’s suggestion that the site was ultimately too small for the brief. It is a tribute to the architect’s skill that the galleries feel in no way compromised by that situation. The challenges are, unfortunately, rather more legible in the building’s external expression. We can but wonder what the architect might have made of the task if the building’s mass had not been determined so rigidly by the masterplan and if the demand for hanging space had not precluded the introduction of windows to such an extent. Given that three more museum buildings of broadly similar proportions are set to be constructed immediately alongside, this would also surely be an opportune moment to reappraise the Braunfels masterplan in the light of the lessons that the Brandhorst now offers.

Imagem colocada

Imagem colocada

Imagem colocada

Fonte: Bdonline

Join the conversation

You can post now and register later. If you have an account, sign in now to post with your account.

Guest
Reply to this topic...

×   Pasted as rich text.   Paste as plain text instead

  Only 75 emoji are allowed.

×   Your link has been automatically embedded.   Display as a link instead

×   Your previous content has been restored.   Clear editor

×   You cannot paste images directly. Upload or insert images from URL.

×
×
  • Create New...

Important Information

We have placed cookies on your device to help make this website better. You can adjust your cookie settings, otherwise we'll assume you're okay to continue.